Top.Mail.Ru
г. Новосибирск, ул. Инская, д.56

ОБСЛЕДОВАНИЯ СТРОИТЕЛЬНЫХ
КОНСТРУКЦИЙ

Проведем необходимые обследования технического состояния зданий и сооружений в соответствии с ГОСТ 31937-2011

АНАЛИЗ СУЩЕСТВУЮЩЕЙ ПРОЕКТНОЙ ДОКУМЕНТАЦИИ

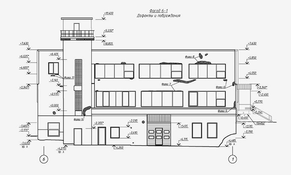
ВИЗУАЛЬНОЕ ОБСЛЕДОВАНИЕ ЗДАНИЯ
Проверка земельного участка и объектов недвижимости на обременения, которые могут препятствовать ее приобретению и использованию.
ОБСЛЕДОВАНИЕ КОНСТРУКЦИЙ И ОТДЕЛЬНЫХ УЗЛОВ ЗДАНИЯ

Мониторинг технического состояния, выявление и фотофиксация дефектов и повреждений при помощи специальных приборов и методов.
ОБРАБОТКА ДАННЫХ ОБСЛЕДОВАНИЯ
Выявление фактических отклонений объектов от параметров застройки земельного участка.

Результат: Схема планировочной организации земельного участка с графическим указанием отклонений:

- предельного количества этажей;
- предельной высоты зданий;
- процента застройки;
- расстояний от зданий и сооружений до границ участка и до красной линии и т.д..
ТЕХНИЧЕСКОЕ ЗАКЛЮЧЕНИЕ


В том числе перечень выявленных дефектов и последствий, к которым они могут привести.

Результат: Заключение о возможности дальнейшего развития земельного участка в части строительства, благоустройства, реконструкции, оценка перспектив изменения правил землепользования и застройки.
ПОЛУЧИТЕ ПРЕДВАРИТЕЛЬНЫЙ РАСЧЁТ ПРОЕКТИРОВАНИЯ ВАШЕГО ОБЪЕКТА

Наш специалист за 48 часов на основе Ваших параметров и справочников произведёт предварительный расчёт стоимости проекта
Пожалуйста, выберите направление
Проектирование гражданских объектов
Разработка генеральных планов и проектов межевания
Обследование зданий
Проектирование промышленных и линейных объектов
ДОПОЛНИТЕЛЬНО ОБСЛЕДОВАНИЮ СТРОИТЕЛЬНЫХ КОНСТРУКЦИЙ
ЛАЗЕРНОЕ
СКАНИРОВАНИЕ
BIM
МОДЕЛИРОВАНИЕ
АВТОРСКИЙ НАДЗОР
ГОСУДАРСТВЕННЫЙ КАДАСТРОВЫЙ УЧЁТ
ПРЕИМУЩЕСТВА КОМПЛЕКСНОГО ПОДХОДА К ПРОЕКТИРОВАНИЮ

ВЫГОДА ДО 10%
При заказе услуг по проектированию вы получаете комплексную скидку до 10%.

Это возможно благодаря оптимизации рабочих процессов наших инженерных подразделений по решению связанных между собой задач в рамках одного заказа.
МИНИМИЗАЦИЯ ОШИБОК

При комплексном подходе наши специалисты разработают проектную документацию, произведут инженерные изыскания, поставят объект на Государственный кадастровый учет.

Это минимизирует вероятность ошибок и исключает риск переделок при проектировании и вводе объекта в эксплуатацию
СОКРАЩЕНИЕ СРОКОВ РАЗРАБОТКИ ПРОЕКТНОЙ ДОКУМЕНТАЦИИ
При заказе услуг по проектированию вы получаете комплексную скидку до 10%.

Это возможно благодаря оптимизации рабочих процессов наших инженерных подразделений по решению связанных между собой задач в рамках одного заказа.
100% ГАРАНТИЯ КАЧЕСТВА И ОТВЕТСТВЕННОСТЬ

Выполняя весь комплекс работ по проектированию, мы несем полную юридическую и материальную ответственность за результаты на каждом этапе, что полностью исключает риски.
100% ГАРАНТИЯ ПРОХОЖДЕНИЯ ЭКСПЕРТИЗЫ И ПОЛУЧЕНИЯ РАЗРЕШЕНИЯ НА СТРОИТЕЛЬСТВО

ЛИЦЕНЗИЯ
УФСБ РОССИИ

Предоставляет нам допуск для проведения всех видов инженерных изысканий на режимных объектах
СРО
ПРОЕКТИРОВАНИЕ

Гарантируем качество выполнения работ по проектированию в строгом соответствии ГОСТ-21.101.2020 и Постановлению Правительства РФ №87 от 16.02.2008
СРО ИНЖЕНЕРНЫЕ ИЗЫСКАНИЯ

Гарантия качества выполняемых работ, прохождения экспертизы инженерных изысканий и дополнительные финансовые гарантии
СЕРТИФИКАТ
ПО СМК

Соответствие организации выполнения работ международным стандартам качества
СВИДЕТЕЛЬСТВО СРО АСОНО
Гарантия качества выполняемых строительно-монтажных работ

ЛИЦЕНЗИЯ РОСРЕЕСТР
Предоставляет нам допуск для проведения всех видов геодезических и картографических работ

ГАРАНТИРУЕМ ПРОФЕССИОНАЛЬНЫЙ ПОДХОД К РЕШЕНИЮ ВАШИХ ЗАДАЧ

356
356 выполненных проектов в период с 2010 - 2024 годы


100+
Геоград - это 100+ специалистов по разным направлениям в штате
18%
До 18% оптимизация бюджета проекта при комплексном подходе
85%
По статистике, 85% проектов мы выполнили раньше графика
КЛИЕНТЫ, КОТОРЫМИ МЫ ГОРДИМСЯ

КОМПЛЕКСНЫЙ ПОДХОД НА ВСЕХ ЭТАПАХ РЕАЛИЗАЦИИ ПРОЕКТА

1
Для начала работ по проектированию определимся с имеющимся комплектом исходно-разрешительной документации в соответствии с обязательным перечнем ИРД Градостроительного кодекса РФ.

Осуществим сбор, подготовку и оформление.
ЭТАП
ПРЕДПРОЕКТНЫЙ
2
Совместно составим техническое задание на проектирование.

Установим основные концептуальные, технические и функциональные характеристики объекта, основные и специальные технико-экономические задачи, предписания по соблюдению требований на различных стадиях и этапах создания документации, состав.
ЭТАП
ТЕХНИЧЕСКОЕ ЗАДАНИЕ
3
Предоставим 3D-визуализацию проектируемого объекта, основные параметры и его размещение на земельном участке.

Эскизный проект не является обязательным этапом, но значительно оптимизирует дальнейший процесс согласований общей концепции проекта.
ЭТАП
ЭСКИЗНЫЙ ПРОЕКТ
4
Разработаем архитектурные и планировочные решения, коммуникации, проект организации строительства и т.д.
На данном этапе проводятся инженерные изыскания и разрабатывается проектная документация.
При наличии на земельном участке зданий и сооружений проведём их обследования с целью анализа оптимальной интеграции в новый проект.
ЭТАП
ПРОЕКТНАЯ ДОКУМЕНТАЦИЯ
5
Гарантированно пройдём экспертизу проектной документации и инженерных изысканий.

Окажем помощь в подготовке документов для начала строительства.
ЭТАП
ЭКСПЕРТИЗА
6
Опишем процесс прикладной реализации проекта. Разработаем чертежи и спецификации, составим локальные сметы для каждого раздела.

Именно на основании рабочей документации подрядчик будет осуществлять строительство объекта.
ЭТАП
РАБОЧАЯ ДОКУМЕНТАЦИЯ
7
Осуществим контроль за процессом строительства объекта в соответствии с проектной документацией.

Данный вид работ позволит исключить отклонения от проектных решений либо своевременно внести необходимые изменения в проект.
ЭТАП
АВТОРСКИЙ НАДЗОР
8
Сопроводим получение Акта о соответствии параметров построенного объекта капитального строительства при вводе в эксплуатацию.

Осуществим постановку на Государственный кадастровый учёт
ЭТАП
СДАЧА В ЭКСПЛУАТАЦИЮ И ГКУ
ДОВЕРИВ ПРОЕКТИРОВАНИЕ НАМ, ВЫ СЭКОНОМИТЕ СИЛЫ И ВРЕМЯ НА ВСЕХ ЭТАПАХ РЕАЛИЗАЦИИ ПРОЕКТА

01
АУДИТ И МЕЖЕВАНИЕ ЗЕМЕЛЬНОГО УЧАСТКА
Сэкономим время и бюджет за счёт данных оперативного технического аудита земельного участка под застройку.

Также определим границы на местности, сформируем СПЗУ, внесем изменения в Росреестр.
ГАРАНТИИ
Мы гарантируем получение всех необходимых согласований в контролирующих органах и положительное заключение государственной или негосударственной экспертизы по проектной документации.

Это позволит вам исключить риск получения отказа в разрешении на строительство и начать СМР в запланированные сроки.
ГОСУДАРСТВЕННЫЙ КАДАСТРОВЫЙ УЧЁТ
Значительно сократим сроки выдачи технического паспорта вновь возводимого или реконструируемого объекта за счёт консолидации процессов проектирования, надзора и последующих замеров и координирования.
В качестве дополнительных гарантий оплату по договору проектирования мы разделили на три части:
50% предоплата
40% по факту выполненных работ
10% после получения положительного заключения экспертизы
02
03
04
ПОЭТАПНАЯ ОПЛАТА
У Вас остались вопросы?
Получите консультацию от ведущих специалистов ГК «ГЕОГРАД»